Værelse i Esbjerg

Areal
30 m²
Boligtype
Værelse
Vær
1 værelse

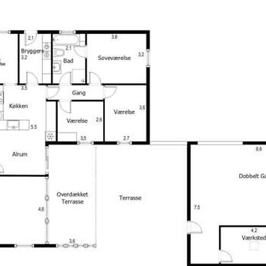
Lys og rummelig familievilla i attraktivt kvarter Denne skønne étplansvilla på 159 m² udlejes pr. 1. juni. Huset har en utrolig god planløsning, masser af lysindfald og ligger på en 745 m² hjørnegrund i et roligt og eftertragtet kvarter i Tarp, tæt på skole og indkøb Her får du 5 værelser (4 soveværelser) stor stue, funktionelt køkken-alrum, overdækket terrasse og masser af plads både inde og ude – perfekt til børnefamilien eller dem, der ønsker god plads. Boligens indretning - Stor og lys stue med store vinduespartier - Køkken-alrum med ...

Leje
12.000 kr om måneden
Placering
Esbjerg
Lejeperiode
-
Verificeret udlejer
Nej
Dato
8 dage siden
Ledig
Kontakt udlejer
Aconto
Kontakt udlejer
Depositum
Kontakt udlejer
Forudbetalt husleje
Kontakt udlejer
Sted